-
Установка ограничителя угла открывания петель LIMIT H87
Подробнее
-
Монтаж замков CODEX Z603
Подробнее
-
Монтаж замков CLUB Z602
Подробнее
-
Монтаж замков SECRET Z601
Подробнее
-
Монтаж волшебного уголка LOTUS KRM10
Подробнее
-
Монтаж выдвижных колонн STELLA и STELLA ESTETICA
Подробнее
-
Система выдвижения СТАРТ от BOYARD: инструкция по установке стандартных мебельных ящиков
Подробнее
-
Система выдвижения СТАРТ от BOYARD: инструкция по установке высоких мебельных ящиков
Подробнее
-
Установка ручек GOLA BALANCE от BOYARD
Подробнее
-
Установка торцевых ручек BOYARD
Подробнее
Контакты
Удиви меня
Боярд скрытого монтажа схема
Привет, уважаемый читатель! Всё чаще клиенты заказывают направляющие скрытого монтажа. И я прекрасно их понимаю, потому-что они превосходят по качеству шариковые. К тому же внутреннее пространство тумбы используется максимально.
Ящик выглядит красиво на скрытых направляющих. Плавность хода сравнима с дорогими брендами. Отлично работающий доводчик, позволяет наслаждаться тишиной. Вы будете рады узнать, что монтаж и демонтаж освоит даже хозяйка.
Направляющие скрытого монтажа расчёт ширины
Для расчёта ширины лобовой и задней планки ящика, отнимаем от внутренней ширины тумбы 42 мм. Где 32 мм это боковины ящика и 10 мм это зазоры по 5мм между боковинами и ящиком. Длина ящика всегда на 10 мм меньше направляющей. Например если направляющая на 500, то ящик будет 490 мм.
Направляющие скрытого монтажа расчёт высоты ящика
Боковые по высоте рассчитываются на 11 мм больше внутренней высоты ящика.Чтобы скрыть направляющие скрытого монтажа. Т.е. если внутренняя высота ящика 100 мм, то высота боковой планки = 100 мм (лобовая или задняя планка) + 16 мм (дно) +11 мм (нижний зазор) = 127 мм высота боковых планок.
Помни, что ширина боковины тумбы всегда больше на 10 чем длина направляющей. Т.е. если направляющие на 500 мм, то боковины тумбы 510 мм. Иначе ящик будет упираться в заднюю стенку. Как показала практика, заявляных в инструкции 5 мм мало.
В шаговой доступности от Вас, размещена услуга по расчёту корпусной мебели.
Установка направляющих скрытого монтажа
Если Вы возьмёте в руки направляющую, то увидите на заднем конце крючок. Он предназначен для фиксации ящика по заду. Чтобы разметить отверстия для крючков, необходимо поставить ящик на направляшки и надавить ящиком на крючки — они отпечатаются.
А теперь посмотрите на фиксаторы. Они держат ящик с лицевой стороны.Прикручиваем их ко дну ящика, заподлицо с краем, 16 ми саморезами (идут в комплекте). С их помощью появляется регулировка ящика по высоте. Чтобы снять ящик, достаточно отжать синие флажки и поднять короб вверх.
Направляющие скрытого монтажа схема установки
Разметку по высоте, производим опираясь на высоту шефлотов (Фасада выдвижного ящика или лицевая панель). Раскладываем рядом с боковиной фасады на родную высоту. На боковину — направляющие, не ниже нижней точки фасада.Фиксируем высоту рулеткой, проводим горизонтальную линию и переносим такой же размер на соседнюю боковину.
В инструкции указано, что крепить направляшку надо в четвёртое отверстие на глубину 37 мм. Закрепив таким образом — фасад ящика не плотно прижимался к торцам боковины. Сместил на 39 мм и зазор исчез. Использовал Боярдовские направляющие скрытого монтажа.
Как быстро и ровно закрепить фасад на ящик с направляющими скрытого монтажа.
Обратите внимание на мой метод точного крепления фасада к ящику без рулетки. Для этого необходимо засверлить боковину ящика под шток эксцентрика и на отверстие наклеить небольшой кусок двустороннего скотча. Продавить его пальцем, затем выставить фасад на родную высоту и приклеить его к ящику.
Теперь резким движением отдёргиваем фасад от ящика. Скотч остаётся на фасаде, т.к. площадь соприкосновения с фасадом у скотча больше, чем с торцом ящика. След отверстия остаётся на скотче. Керним, убираем скотч и делаем присадку. Лучше использовать синий двусторонний скотч.
Итог
Теперь Вам известно то же, что знаю я. Вы способны установить направляющие скрытого монтажа без лишних движений. Система очень проста и не требует умственных усилий. Выполняйте инструкции и наслаждайтесь плавностью хода!
Если Вам понадобится деталировка корпусной или встроенной мебели , обращайтесь. Мы обязательно обсудим условия сотрудничества и придём к единому мнению. За умеренный процент за свой труд, я подготовлю для Вас подробный проект в назначенные сроки.
Что бы Вам хотелось добавить к этой статье?
Расскажите мне о своём опыте в комментариях.
Мне будет очень интересно послушать Ваши истории!
С хорошими мыслями о Вас, эксперт в мебельных вопросах
Ре́кун Дмитрий.
Не забудьте поделиться этой статьей в социальных сетях
DB8885 и DB8886 — направляющие линейки B-Slide, совмещающие технологию push-to-open и скрытый монтаж; предназначены для взыскательной аудитории, выбирающей комфортную и лаконичную мебель.
DB8885 выпущены в версии полного выдвижения, а DB8886 — частичного. Модели повторяют следующие преимущества линейки B-Slide:
- отсутствие провисания,
- повышенный срок эксплуатации и комфорт,
- универсальные присадочные размеры,
- доступная стоимость.
Направляющие B-Slide с функцией push являются подходящим вариантом фурнитуры для внутренних выдвижных модулей и ящиков с вкладными фасадами. Если производитель планитует изготовить такой ящик, то важно на расстоянии обязательного технологического зазора
в 4 мм от фасада предусмотреть специальный упор. Если упор не сделать, при эксплуатации ящика механизм push будет сломан.
В направляющих B-Slide в версии push реализован защитный механизм толкателя, который продолжает функционировать даже при случайном открытии — без
нажатия на фасад. При некорректной эксплуатации фиксирующий подвижный элемент толкателя просто слегка сдвигается внутрь пластикового корпуса, позволяя
крючку на направляющей проехать вперёд, не повреждая его. Механизм защиты способен выдержать более 100 некорректных открываний.
Несмотря на высокий класс DB8885 и DB8886, стоимость направляющих ниже, чем у моделей-предшественников — DB4465 и DB4466.
ТЕХНИЧЕСКИЕ ХАРАКТЕРИСТИКИ
| Модель | DB8885 | DB8886 |
| Тип выдвижения | Полное | Неполное |
| Диапазон длин | 300-500 мм | |
| Грузоподъёмность | 30 кг | 25 кг |
| Гарантированное количество циклов открывания / закрывания |
Не менее 60 000 | |
| Механизм движения | Выдвижение после нажатия | |
| Тип монтажа | Надвижной | |
| Раскрой и схема присадки | Идентичны DB8881 Важно! У моделей DB8881, DB8885 схема установки направляющих разных длин отличается — внимательно смотрите инструкцию! |
Идентичны DB8882 |
СХЕМА ПРИСАДКИ НАПРАВЛЯЮЩИХ DB8885
СХЕМА ПРИСАДКИ НАПРАВЛЯЮЩИХ DB8886
ОБЛАСТЬ СРАБАТЫВАНИЯ МЕХАНИЗМА PUSH У НАПРАВЛЯЮЩИХ DB8885, DB8886
Корректное срабатывание механизма push-to-open у направляющих возможно только после полноценного нажатия на фасад, когда он смещается относительно корпуса
на глубину обязательного технологического зазора по всей плоскости — 4 мм. Глубина технологического зазора у направляющих B-Slide меньше, чем у других моделей
направляющих BOYARD с функцией push-to-open (5 мм у направляющих DB4515, 6 мм у DB4518), для более лёгкого открывания.
Содержание
- Направляющие скрытого монтажа, расчет ящиков и схема установки
- Что представляют собой направляющие скрытого монтажа для выдвижных ящиков и какие лучше выбрать
- Расчет ящика под направляющие скрытого монтажа для Боярд, Блюм, Хеттих и Хефале
- Пример расчета выдвижного ящика с внутренним фасадом на направляющих нижнего крепления
- Общая схема установки направляющих скрытого монтажа на выдвижной ящик
- Направляющие боярд скрытого монтажа инструкция по установке
- Устройство и принцип работы скрытых направляющих
- Выбор фурнитуры
- Виды направляющих
- Определение технических параметров направляющих
- Выбор производителя
- Монтажа направляющих скрытого типа
Направляющие скрытого монтажа, расчет ящиков и схема установки
Существует три вида бюджетных направляющих – роликовые, шариковые (телескопические) и скрытого монтажа, которые еще называют направляющие нижнего крепления. Последние у нас пользуются не таким большим спросом, как первые два вида. Но постепенно завоевывают российский рынок. Направляющие скрытого монтажа придают более эстетичный вид конструкции выдвижного ящика, поскольку практически незаметны. При этом обладают рядом преимуществ.
Что представляют собой направляющие скрытого монтажа для выдвижных ящиков и какие лучше выбрать
Скрытый монтаж подразумевает отсутствие видимой фурнитуры на боковинах ящика. Благодаря этому элементы мебели смотрятся более привлекательно и стильно. Достигается такой эффект «скрытой» фурнитуры за счет нижнего крепления направляющих на выдвижной ящик, под его донышко.
Из-за этого полозки с креплением к корпусу тумбы имеют массивную Г-образную форму. А вторая часть, с креплением под донышко самого ящика – телескопическая, с интегрированным вовнутрь шариковым механизмом. В комплект также входят цапфы и крепежные элементы для насадного монтажа. Для облегчения демонтажа ящика и повторной установки надвижным способом предлагаются специальные замки-фиксаторы.
Направляющие скрытого монтажа также могут комплектоваться доводчиком для плавного закрывания и системой открывания от нажатия. Так же как и шариковые направляющие, они могут быть полного и частичного выдвижения. Имеют такой же размерный ряд — длиной 250, 300, 400, 450, 500 и 550мм.
Удобнее всего рассмотреть разновидности направляющих скрытого монтажа на примере Hettich QUADRO. У производителя есть две серии, QUADRO 25/30 неполного выдвижения и QUADRO V6 полного выдвижения. У каждой из серий есть три варианта возможной комплектации:
- Quadro Stop Control – плавное дотягивание (самозакрывание).
- Quadro Silent System – встроенный демпфер (доводчик) для плавного закрывания.
- Quadro Push to open – встроенный механизм открытие от нажатия.
Выдвижные ящики с открытием от нажатия на направляющих скрытого монтажа – прекрасное дополнение толкателям на распашные фасады. Все остальные варианты возможного оснащения ящиков механизмами push-up либо слишком дороги, либо недостаточно качественны (в плане безотказности срабатывания механизма открывания при разной загруженности ящика).
Помимо Hettich Quadro из производителей можно выделить хорошего качества более бюджетные варианты Boyard (Боярд) и Hafele (Хефале) с аналогичным делением на серии, но со своими артикулами.
Также можно отметить качество Tandem от Bum, как и более высокую стоимость. Однако у Blum есть одно неоспоримое преимущество, в серии предлагается еще так называемый стабилизатор – незаменимый элемент при проектировании длинных выдвижных ящиков с открытием от нажатия. Благодаря ему, механизм открывания срабатывает от нажатия в любом месте фасада и обеспечивает равномерное выдвижение ящика. Поэтому при проектировании длинных тумб ТВ с открытием ящиков от нажатия лучше сразу выбирать блюмовские тандемы.
Из преимуществ направляющих скрытого монтажа стоит отметить отличную несущую способность и стабильность. По сути, они представляют собой альтернативу между обычными шариковыми направляющими и метабоксами.
Расчет ящика под направляющие скрытого монтажа для Боярд, Блюм, Хеттих и Хефале
Схема расчета деталей выдвижного ящика под установку направляющих скрытого монтажа у всех производителей одинакова, за исключением одного нюанса. Но если глубина корпуса тумбы больше глубины ящика на 20-30мм этот нюанс не имеет особого значения.
Стандартная схема установки предполагает общую конструкцию выдвижного ящика с утопленным дном относительно боковин. Устанавливается дно из ДВП в паз боковин.
А ведь грузоподъемность механизма направляющих с нижним креплением довольно хорошая (20-30кг) и стабильная за счет монтажа под дно. Поэтому можно упростить себе задачу и заменить ДВП на вкладное дно из ЛДСП. Это сделает ящик тяжелее на 1,5-3кг, но при этом он будет более жестким и прочным, приспособленным для хранения тяжелых вещей и позволит полностью использовать ресурс направляющих.
Чтобы рассчитать детали ящика для установки направляющих скрытого монтажа, нужно изучить инструкции конкретного производителя и рекомендуемые зазоры между боковинами и самим ящиком.
И вот тут бывают отличия. Например, в схеме расчета Hettich можно увидеть, что расстояние между внутренней боковиной тумбой и лбом ящика равно 20мм, а донышко должно быть приподнято на 12-13мм. А на схемах установки Блюм цифры несколько иные – 21мм против 20мм и 12-15мм против 12-13мм (а у Боярд и вовсе 10-11мм).
Как показывает опыт сборщиков, при разнице 20мм выдвижной ящик на направляющих скрытого монтажа слишком туго ходит, цепляя шляпки шурупов, на которые закреплены рельсы. Поэтому берем усредненные цифры для расчета детали «лоб ящика».
Также конкретно у Blum, Боярд боковина ящика должна быть короче номинальной длины самой направляющей. То есть при направляющей 500мм, глубина ящика равна 490мм. При этом механизм, «ворующий» у глубины ящика эти 10мм, «экономит» его у тумбы – ее глубина может быть больше всего 10мм.
А вот у Hettich, Hafele глубина ящика берется равной длине направляющих. При этом глубина тумбы должна быть больше на 20-30мм.
Общая схема расчета деталей выдвижного ящика для направляющих скрытого монтажа будет следующей.
- Длина ящика равна длине направляющих NL либо (NL-10). При этом в первом случае глубина самой тумбы должна быть (NL+20) минимум, а во втором — достаточно (NL+10).
- Длина лба ящика равна внутреннему размеру тумбы за минусом 42мм.
- Высота выдвижного ящика обычно меньше фасада на 30-50мм. При этом если мы берем высоту боковин ящика равной 100мм, высота деталей лба будет меньше на 12мм.
- Дно высчитывается как вкладная горизонталь между вертикальными деталями.
Пример расчета выдвижного ящика с внутренним фасадом на направляющих нижнего крепления
Пусть нужно сделать два выдвижных ящика в секции гардеробной шириной 400мм. При этом глубина боковин равна 450мм, а высота фасадов ящиков 180мм. Установим направляющие Боярд длиной 400мм.
Используем общую схему расчета для направляющих скрытого монтажа.
Получим следующие детали для выдвижного ящика:
- Боковины ящика 390х130 – 4шт. Кромка в круговую (по периметру).
- Лоб ящика 326х118 – 4шт. Кромка по двум длинным сторонам (по 326мм сверху и снизу).
- Дно ящика 358х326 – 2шт. Без кромки.
- Фасад ящика 176х364 – 2шт. Кромка в круговую (максимум 1мм толщиной).
Общая схема установки направляющих скрытого монтажа на выдвижной ящик
Направляющие нижнего крепления устанавливаются на уже собранный ящик и предпочтительно еще разобранную тумбу – так проще размечать и прикручивать фурнитуру.
Обычно установка части телескопической направляющей с комплектом цапф и замком на донышко ящика с обратной стороны не вызывает затруднений. Достаточно изучить инструкцию и разметить места креплений.
При разметке боковин под крепление неподвижной части направляющей скрытого монтажа стоит начинать с нижнего ящика. И тех рекомендаций, что даны для отступа от нижнего края.
Далее, с учетом высоты фасада, повторяют тот же самый принцип для разметки остальных ящиков.
Для установки направляющих нижнего крепления используют так называемый насадной или надвижной монтаж. В первом случае, собранный ящик насаживается на выдвинутые направляющие под наклоном на крюки и задвигается до соединения с цапфами.
Во втором «участвуют» замки-фиксаторы. Выдвижной ящик надевается на выдвинутые направляющие и задвигается до защелкивания замков.
Фасады на выдвижные ящики скрытого монтажа устанавливаются точно также, как и на обычные, с шариковыми направляющими. С помощью двухстороннего скотча и подкладок сначала выравнивается положение фасадов, с учетом равномерности зазоров. А потом прикручиваются ко лбу выдвижных ящиков на саморезы 4х30 изнутри.
Источник
Направляющие боярд скрытого монтажа инструкция по установке
На функциональность предметов мебели в большей степени влияет установленная фурнитура. Чтобы повысить комфорт при использовании выдвижных конструкций (полок, ящиков и так далее), можно установить скрытые направляющие для ящиков. Что собой представляет данный вид фурнитуры? Каковы его преимущества и недостатки? Как самостоятельно выбрать и установить направляющие скрытого типа, читайте далее.
Выдвижной ящик на направляющих скрытого типа
Устройство и принцип работы скрытых направляющих
В комплект направляющих скрытого монтажа входят:
- металлические планки;
- металлические основания, по которым происходит движение планок;
- роликовые или шариковые механизмы, облегчающие процесс движения планок;
- цапфы для фиксации фурнитуры к ящику;
- крепежные элементы.
Комплектация направляющих скрытого монтажа
Стандартные комплекты могут быть дополнены:
- устройствами плавного закрытия. Фурнитура с доводчиком позволяет продлить срок службы мебели, так как отсутствие хлопка при закрывании исключает возможность повреждения материала;
- возвратными пружинами, позволяющими плавно и в короткие сроки закрыть выдвинутый ящик;
- замками-фиксаторами, облегчающими процесс использования и демонтажа конструкции;
- системами открывания нажатием на фасад ящика (Push-to-open).
Все направляющие скрытой установки изготавливаются из качественных материалов и отличаются:
- доступностью. Стоимость фурнитуры значительно ниже популярных в настоящее время метабоксов и тандембоксов, а функциональность значительно приближается к указанным комплектам;
- бесшумностью при работе;
- возможность полного выдвижения ящика;
- компактностью и возможность использования максимального количества пространства предмета мебели;
- долговечностью.
К недостаткам можно отнести сложность установки, но подробная инструкция, прилагаемая к комплекту фурнитуры, и наличие начальных навыков работы с простейшим набором инструментов существенно облегчат процесс.
Выбор фурнитуры
Залогом длительного использования скрытых направляющих в первую очередь играет правильный выбор фурнитуры. Чтобы корректно подобрать механизм для выдвижного ящика, необходимо учитывать:
- габаритные размеры фурнитуры;
- максимальную нагрузку;
- разновидность;
- фирму-производителя.
Виды направляющих
Направляющие скрытого монтажа могут быть:
Шариковые направляющие изготавливаются из двух и более металлических профилей, соединенных между собой с использованием шариков качения (сепаратор).
Устройство скрытой направляющей шарикового типа
Преимуществами данного механизма являются полное отсутствие шума при работе, возможность регулирования и возможность использования при нагрузках до 60 кг – 65 кг. Существенным недостатком является высокая стоимость фурнитуры.
Роликовый механизм является более простой и более дешевой конструкцией. Направляющие состоят из двух металлических планок, на концах которых установлены ролики, облегчающие процесс движения.
Направляющая для ящика роликового типа
Недостатками данного типа фурнитуры является ограничение максимальной нагрузки на ящик до 25 кг и наличие шума при работе, который можно устранить при помощи резиновых шин.
Определение технических параметров направляющих
Для корректного монтажа перед выбором требуется провести расчет направляющих скрытого монтажа, чтобы определить длину фурнитуры.
При расчете необходимо учитывать:
- вид фасада ящика. Различают мебель с накладным и вкладным фасадом;
- вид направляющей (частичного или полного выдвижения).
Расчет производится в соответствии с рекомендациями производителя:
- для ящиков с вкладным фасадом оптимальная длина направляющей будет определяться как разница между размером боковой стенки корпуса и 21 мм;
- для ящика с накладным фасадом используют формулу боковой размер минус 3 мм.
Расчет ящика также можно провести на основании дополнительных параметров:
- внутреннего размера;
- внутренних размеров корпуса и так далее.
Определение длины направляющих
Выбор производителя
Заключительный этап выбора – определение производителя мебельной фурнитуры. Рекомендуется приобретать скрытые направляющие, изготовленные:
- австрийской компанией Blum (мировой лидер по производству мебельной фурнитуры). Производитель специализируется на изготовлении направляющих разного вида. Преимуществами компании являются выпуск широкого модельного ряда направляющих по различной стоимости, в том числе и фурнитуры с дополнительными опциями, длительный срок использования (гарантия Блюм составляет 15 лет), приложение подробных инструкций для самостоятельного монтажа;
Скрытые направляющие от мирового лидера
- немецкая компания Hettich. Основное отличие – более доступная стоимость. По качеству фурнитура практически не уступает мировому лидеру;
- российский производитель Firmax. Компания изготавливает качественную фурнитуру, разработанную российскими специалистами. Производство расположено в Китае, что позволяет снизить стоимость продукции;
- итальянская фирма Fgv, специализирующаяся на изготовлении выдвижной фурнитуры и мебельных петель.
Так же можно обратить внимание на фурнитуру российской компании Boyard и польской фирмы GTV.
Монтажа направляющих скрытого типа
Итак, к каждому комплекту направляющих, изготовленными фирмами Блюм, Хеттих и так далее, прилагается схема установки фурнитуры, в соответствии с которой и рекомендуется производить монтаж.
Схематическое изображение процесса установки
В общем случае монтаж фурнитуры Боярд, Блюм и так далее, производится так:
- на дне ящика производится разметка мест крепления фиксатором направляющих в соответствии с рекомендациями специалистов, указанные в инструкции;
- фиксаторы закрепляются саморезами (прилагаются к комплекту фурнитуры);
Размещение и крепление фиксатора для направляющей планки
- напротив фиксаторов просверливаются отверстия для крючка-защелки, по размеру полностью соответствующему данному элементу выдвижной системы;
- устанавливаются планки направляющих;
Установка планок направляющих на ящик
- на боковые части мебели саморезами устанавливаются основания направляющих;
Установка оснований на боковины корпуса мебели
- планки вставляются в основания.
Процесс расчета и монтажа скрытых направляющих подробно представлен на видео.
После крепления всех частей направляющих скрытого монтажа производится регулировка фурнитуры. Как правило, отрегулировать можно длину и ширину планок.
В разделе «Системы скрытого монтажа DB» вы найдете подробные описания всех моделей высокотехнологичных систем скрытого монтажа DB от компании BOYARD.
Скрытый монтаж – главное преимущество, которое отличает направляющие DB от других систем выдвижения. Все детали механизма направляющих скрыты от взора. Благодаря этому достоинству системы DB наиболее предпочтительны для роскошной, элегантной мебели. Остановившись на направляющих DB, производитель мебели может выбрать из ассортимента ту модель, которая ему больше подходит по функционалу, способу монтажа и по стоимости.
В спектре DB от BOYARD представлены модели с частичным или полным выдвижением, с насадным или надвижным монтажом, а также с такими дополнительными опциями, как плавное закрывание и выдвижение после нажатия. Выбрав по названию или артикулу интересующую позицию, вы сможете прочитать подробное описание каждой модели.
Направляющие скрытого монтажа полного выдвижения, установка мебельного ящика на которых осуществляется при помощи надвижного монтажа.
Направляющие скрытого монтажа полного выдвижения с опцией открывания легким нажатием на фасад, со способом установки мебельного ящика при помощи надвижного монтажа.
Направляющие скрытого монтажа неполного выдвижения, установка мебельного ящика на которых осуществляется при помощи надвижного монтажа.
Направляющие скрытого монтажа неполного выдвижения с опцией открывания легким нажатием на фасад, со способом установки мебельного ящика при помощи надвижного монтажа.
Направляющие скрытого монтажа полного выдвижения, установка мебельного ящика на которых осуществляется при помощи насадного монтажа, то есть креплением на цапфу.
Направляющие скрытого монтажа полного выдвижения с опцией открывания легким нажатием на фасад, со способом установки мебельного ящика при помощи насадного монтажа.
Направляющие скрытого монтажа неполного выдвижения, установка мебельного ящика на которых осуществляется при помощи насадного монтажа, то есть креплением на цапфу.
Направляющие скрытого монтажа неполного выдвижения с опцией открывания легким нажатием на фасад, со способом установки мебельного ящика при помощи насадного монтажа.
- Дополнительно: Аксессуары для DB4461, Аксессуары для DB4465
- Тип конструкции: Шариковые скрытого монтажа
- Кол-во в упаковке: 100
- Вес упаковки: 5,100 кг
- Амортизатор: Есть
- Монтажная длина: 300 мм
- Тип выдвижения: Неполное
- Тип конструкции: Шариковые скрытого монтажа
- Тип движения: soft-closing (плавное закрывание)
- Цвет: Цинк
- Метод крепления: С креплением на цапфу (насадной)
- Несущая способность (на пару): до 20 кг
- Минимальная высота проема: 50 мм
- Сегмент: Средний
- Стандарт: ЕвроГОСТ
- Количество циклов открывания/закрывания: 50 000
- Кол-во в упаковке: 10
- Вес упаковки: 10,200 кг
- Амортизатор: Есть
- Монтажная длина: 250 мм
- Тип выдвижения: Полное
- Тип конструкции: Шариковые скрытого монтажа
- Тип движения: soft-closing (плавное закрывание)
- Цвет: Цинк
- Метод крепления: С пласт. фиксатором (надвижной)
- Несущая способность (на пару): до 25 кг
- Минимальная высота проема: 50 мм
- Сегмент: Средний+
- Стандарт: ЕвроГОСТ
- Количество циклов открывания/закрывания: 50 000
- Кол-во в упаковке: 10
- Вес упаковки: 11,140 кг
- Амортизатор: Есть
- Монтажная длина: 270 мм
- Тип выдвижения: Полное
- Тип конструкции: Шариковые скрытого монтажа
- Тип движения: soft-closing (плавное закрывание)
- Цвет: Цинк
- Метод крепления: С пласт. фиксатором (надвижной)
- Несущая способность (на пару): до 25 кг
- Минимальная высота проема: 50 мм
- Сегмент: Средний+
- Стандарт: ЕвроГОСТ
- Количество циклов открывания/закрывания: 50 000
- Кол-во в упаковке: 10
- Вес упаковки: 11,680 кг
- Амортизатор: Есть
- Монтажная длина: 300 мм
- Тип выдвижения: Полное
- Тип конструкции: Шариковые скрытого монтажа
- Тип движения: soft-closing (плавное закрывание)
- Цвет: Цинк
- Метод крепления: С пласт. фиксатором (надвижной)
- Несущая способность (на пару): до 25 кг
- Минимальная высота проема: 50 мм
- Сегмент: Средний+
- Стандарт: ЕвроГОСТ
- Количество циклов открывания/закрывания: 50 000
- Кол-во в упаковке: 10
- Вес упаковки: 12,370 кг
- Амортизатор: Есть
- Монтажная длина: 350 мм
- Тип выдвижения: Полное
- Тип конструкции: Шариковые скрытого монтажа
- Тип движения: soft-closing (плавное закрывание)
- Цвет: Цинк
- Метод крепления: С пласт. фиксатором (надвижной)
- Несущая способность (на пару): до 25 кг
- Минимальная высота проема: 50 мм
- Сегмент: Средний+
- Стандарт: ЕвроГОСТ
- Количество циклов открывания/закрывания: 50 000
- Кол-во в упаковке: 10
- Вес упаковки: 14,940 кг
- Амортизатор: Есть
- Монтажная длина: 400 мм
- Тип выдвижения: Полное
- Тип конструкции: Шариковые скрытого монтажа
- Тип движения: soft-closing (плавное закрывание)
- Цвет: Цинк
- Метод крепления: С пласт. фиксатором (надвижной)
- Несущая способность (на пару): до 25 кг
- Минимальная высота проема: 50 мм
- Сегмент: Средний+
- Стандарт: ЕвроГОСТ
- Количество циклов открывания/закрывания: 50 000
- Кол-во в упаковке: 10
- Вес упаковки: 16,150 кг
- Амортизатор: Есть
- Монтажная длина: 500 мм
- Тип выдвижения: Полное
- Тип конструкции: Шариковые скрытого монтажа
- Тип движения: soft-closing (плавное закрывание)
- Цвет: Цинк
- Метод крепления: С пласт. фиксатором (надвижной)
- Несущая способность (на пару): до 25 кг
- Минимальная высота проема: 50 мм
- Сегмент: Средний+
- Стандарт: ЕвроГОСТ
- Количество циклов открывания/закрывания: 50 000
- Кол-во в упаковке: 10
- Вес упаковки: 20,210 кг
- Амортизатор: Есть
- Монтажная длина: 550 мм
- Тип выдвижения: Полное
- Тип конструкции: Шариковые скрытого монтажа
- Тип движения: soft-closing (плавное закрывание)
- Цвет: Цинк
- Метод крепления: С пласт. фиксатором (надвижной)
- Несущая способность (на пару): до 25 кг
- Минимальная высота проема: 50 мм
- Сегмент: Средний+
- Стандарт: ЕвроГОСТ
- Количество циклов открывания/закрывания: 50 000
- Кол-во в упаковке: 10
- Вес упаковки: 22,020 кг
- Амортизатор: Есть
- Монтажная длина: 250 мм
- Тип выдвижения: Неполное
- Тип конструкции: Шариковые скрытого монтажа
- Тип движения: soft-closing (плавное закрывание)
- Цвет: Цинк
- Метод крепления: С пласт. фиксатором (надвижной)
- Несущая способность (на пару): до 25 кг
- Минимальная высота проема: 50 мм
- Сегмент: Средний
- Стандарт: ЕвроГОСТ
- Количество циклов открывания/закрывания: 50 000
- Кол-во в упаковке: 10
- Вес упаковки: 7,260 кг
- Амортизатор: Есть
- Монтажная длина: 270 мм
- Тип выдвижения: Неполное
- Тип конструкции: Шариковые скрытого монтажа
- Тип движения: soft-closing (плавное закрывание)
- Цвет: Цинк
- Метод крепления: С пласт. фиксатором (надвижной)
- Несущая способность (на пару): до 25 кг
- Минимальная высота проема: 50 мм
- Сегмент: Средний
- Стандарт: ЕвроГОСТ
- Количество циклов открывания/закрывания: 50 000
- Кол-во в упаковке: 10
- Вес упаковки: 7,520 кг
- Амортизатор: Есть
- Монтажная длина: 300 мм
- Тип выдвижения: Неполное
- Тип конструкции: Шариковые скрытого монтажа
- Тип движения: soft-closing (плавное закрывание)
- Цвет: Цинк
- Метод крепления: С пласт. фиксатором (надвижной)
- Несущая способность (на пару): до 25 кг
- Минимальная высота проема: 50 мм
- Сегмент: Средний
- Стандарт: ЕвроГОСТ
- Количество циклов открывания/закрывания: 50 000
- Кол-во в упаковке: 10
- Вес упаковки: 8,220 кг
- Амортизатор: Есть
- Монтажная длина: 350 мм
- Тип выдвижения: Неполное
- Тип конструкции: Шариковые скрытого монтажа
- Тип движения: soft-closing (плавное закрывание)
- Цвет: Цинк
- Метод крепления: С пласт. фиксатором (надвижной)
- Несущая способность (на пару): до 25 кг
- Минимальная высота проема: 50 мм
- Сегмент: Средний
- Стандарт: ЕвроГОСТ
- Количество циклов открывания/закрывания: 50 000
- Кол-во в упаковке: 10
- Вес упаковки: 9,180 кг
- Амортизатор: Есть
- Монтажная длина: 400 мм
- Тип выдвижения: Неполное
- Тип конструкции: Шариковые скрытого монтажа
- Тип движения: soft-closing (плавное закрывание)
- Цвет: Цинк
- Метод крепления: С пласт. фиксатором (надвижной)
- Несущая способность (на пару): до 25 кг
- Минимальная высота проема: 50 мм
- Сегмент: Средний
- Стандарт: ЕвроГОСТ
- Количество циклов открывания/закрывания: 50 000
- Кол-во в упаковке: 10
- Вес упаковки: 10,780 кг
- Амортизатор: Есть
- Монтажная длина: 450 мм
- Тип выдвижения: Неполное
- Тип конструкции: Шариковые скрытого монтажа
- Тип движения: soft-closing (плавное закрывание)
- Цвет: Цинк
- Метод крепления: С пласт. фиксатором (надвижной)
- Несущая способность (на пару): до 25 кг
- Минимальная высота проема: 50 мм
- Сегмент: Средний
- Стандарт: ЕвроГОСТ
- Количество циклов открывания/закрывания: 50 000
- Кол-во в упаковке: 10
- Вес упаковки: 11,990 кг
- Амортизатор: Есть
- Монтажная длина: 500 мм
- Тип выдвижения: Неполное
- Тип конструкции: Шариковые скрытого монтажа
- Тип движения: soft-closing (плавное закрывание)
- Цвет: Цинк
- Метод крепления: С пласт. фиксатором (надвижной)
- Несущая способность (на пару): до 25 кг
- Минимальная высота проема: 50 мм
- Сегмент: Средний
- Стандарт: ЕвроГОСТ
- Количество циклов открывания/закрывания: 50 000
- Кол-во в упаковке: 10
- Вес упаковки: 13,030 кг
- Амортизатор: Есть
- Монтажная длина: 550 мм
- Тип выдвижения: Неполное
- Тип конструкции: Шариковые скрытого монтажа
- Тип движения: soft-closing (плавное закрывание)
- Цвет: Цинк
- Метод крепления: С пласт. фиксатором (надвижной)
- Несущая способность (на пару): до 25 кг
- Минимальная высота проема: 50 мм
- Сегмент: Средний
- Стандарт: ЕвроГОСТ
- Количество циклов открывания/закрывания: 50 000
- Кол-во в упаковке: 10
- Вес упаковки: 14,270 кг
- Амортизатор: Есть
- Монтажная длина: 300 мм
- Тип выдвижения: Полное
- Тип конструкции: Шариковые скрытого монтажа
- Тип движения: soft-closing (плавное закрывание)
- Цвет: Цинк
- Метод крепления: С креплением на цапфу (насадной)
- Несущая способность (на пару): до 25 кг
- Минимальная высота проема: 50 мм
- Сегмент: Средний
- Стандарт: ЕвроГОСТ
- Количество циклов открывания/закрывания: 50 000
- Кол-во в упаковке: 10
- Вес упаковки: 12,582 кг
- Амортизатор: Есть
- Монтажная длина: 350 мм
- Тип выдвижения: Полное
- Тип конструкции: Шариковые скрытого монтажа
- Тип движения: soft-closing (плавное закрывание)
- Цвет: Цинк
- Метод крепления: С креплением на цапфу (насадной)
- Несущая способность (на пару): до 25 кг
- Минимальная высота проема: 50 мм
- Сегмент: Средний
- Стандарт: ЕвроГОСТ
- Количество циклов открывания/закрывания: 50 000
- Кол-во в упаковке: 10
- Вес упаковки: 14,562 кг
- Амортизатор: Есть
- Монтажная длина: 400 мм
- Тип выдвижения: Полное
- Тип конструкции: Шариковые скрытого монтажа
- Тип движения: soft-closing (плавное закрывание)
- Цвет: Цинк
- Метод крепления: С креплением на цапфу (насадной)
- Несущая способность (на пару): до 25 кг
- Минимальная высота проема: 50 мм
- Сегмент: Средний
- Стандарт: ЕвроГОСТ
- Количество циклов открывания/закрывания: 50 000
- Кол-во в упаковке: 10
- Вес упаковки: 15,881 кг
- Амортизатор: Есть
- Монтажная длина: 450 мм
- Тип выдвижения: Полное
- Тип конструкции: Шариковые скрытого монтажа
- Тип движения: soft-closing (плавное закрывание)
- Цвет: Цинк
- Метод крепления: С креплением на цапфу (насадной)
- Несущая способность (на пару): до 25 кг
- Минимальная высота проема: 50 мм
- Сегмент: Средний
- Стандарт: ЕвроГОСТ
- Количество циклов открывания/закрывания: 50 000
- Кол-во в упаковке: 10
- Вес упаковки: 17,775 кг
- Амортизатор: Есть
- Монтажная длина: 500 мм
- Тип выдвижения: Полное
- Тип конструкции: Шариковые скрытого монтажа
- Тип движения: soft-closing (плавное закрывание)
- Цвет: Цинк
- Метод крепления: С креплением на цапфу (насадной)
- Несущая способность (на пару): до 25 кг
- Минимальная высота проема: 50 мм
- Сегмент: Средний
- Стандарт: ЕвроГОСТ
- Количество циклов открывания/закрывания: 50 000
- Кол-во в упаковке: 10
- Вес упаковки: 19,773 кг
- Амортизатор: Есть
- Монтажная длина: 550 мм
- Тип выдвижения: Полное
- Тип конструкции: Шариковые скрытого монтажа
- Тип движения: soft-closing (плавное закрывание)
- Цвет: Цинк
- Метод крепления: С креплением на цапфу (насадной)
- Несущая способность (на пару): до 25 кг
- Минимальная высота проема: 50 мм
- Сегмент: Средний
- Стандарт: ЕвроГОСТ
- Количество циклов открывания/закрывания: 50 000
- Кол-во в упаковке: 10
- Вес упаковки: 21,577 кг
- Амортизатор: Есть
- Монтажная длина: 250 мм
- Тип выдвижения: Неполное
- Тип конструкции:
- Тип движения: soft-closing (плавное закрывание)
- Цвет: Цинк
- Метод крепления: С креплением на цапфу (насадной)
- Несущая способность (на пару): до 25 кг
- Минимальная высота проема: 50 мм
- Кол-во в упаковке: 10
- Вес упаковки: 7,080 кг
- Амортизатор: Есть
- Монтажная длина: 270 мм
- Тип выдвижения: Неполное
- Тип конструкции: Шариковые скрытого монтажа
- Тип движения: soft-closing (плавное закрывание)
- Цвет: Цинк
- Метод крепления: С креплением на цапфу (насадной)
- Несущая способность (на пару): до 25 кг
- Минимальная высота проема: 50 мм
- Сегмент: Средний
- Стандарт: ЕвроГОСТ
- Количество циклов открывания/закрывания: 50 000
- Кол-во в упаковке: 10
- Вес упаковки: 7,620 кг
- Амортизатор: Есть
- Монтажная длина: 300 мм
- Тип выдвижения: Неполное
- Тип конструкции:
- Тип движения: soft-closing (плавное закрывание)
- Цвет: Цинк
- Метод крепления: С креплением на цапфу (насадной)
- Несущая способность (на пару): до 25 кг
- Минимальная высота проема: 50 мм
- Кол-во в упаковке: 10
- Вес упаковки: 8,345 кг
- Амортизатор: Есть
- Монтажная длина: 350 мм
- Тип выдвижения: Неполное
- Тип конструкции: Шариковые скрытого монтажа
- Тип движения: soft-closing (плавное закрывание)
- Цвет: Цинк
- Метод крепления: С креплением на цапфу (насадной)
- Несущая способность (на пару): до 25 кг
- Минимальная высота проема: 50 мм
- Сегмент: Средний
- Стандарт: ЕвроГОСТ
- Количество циклов открывания/закрывания: 50 000
- Кол-во в упаковке: 10
- Вес упаковки: 9,710 кг
- Амортизатор: Есть
- Монтажная длина: 400 мм
- Тип выдвижения: Неполное
- Тип конструкции: Шариковые скрытого монтажа
- Тип движения: soft-closing (плавное закрывание)
- Цвет: Цинк
- Метод крепления: С креплением на цапфу (насадной)
- Несущая способность (на пару): до 25 кг
- Минимальная высота проема: 50 мм
- Сегмент: Средний
- Стандарт: ЕвроГОСТ
- Количество циклов открывания/закрывания: 50 000
- Кол-во в упаковке: 10
- Вес упаковки: 10,690 кг
- Амортизатор: Есть
- Монтажная длина: 450 мм
- Тип выдвижения: Неполное
- Тип конструкции: Шариковые скрытого монтажа
- Тип движения: soft-closing (плавное закрывание)
- Цвет: Цинк
- Метод крепления: С креплением на цапфу (насадной)
- Несущая способность (на пару): до 25 кг
- Минимальная высота проема: 50 мм
- Сегмент: Средний
- Стандарт: ЕвроГОСТ
- Количество циклов открывания/закрывания: 50 000
- Кол-во в упаковке: 10
- Вес упаковки: 11,220 кг
- Амортизатор: Есть
- Монтажная длина: 500 мм
- Тип выдвижения: Неполное
- Тип конструкции: Шариковые скрытого монтажа
- Тип движения: soft-closing (плавное закрывание)
- Цвет: Цинк
- Метод крепления: С креплением на цапфу (насадной)
- Несущая способность (на пару): до 25 кг
- Минимальная высота проема: 50 мм
- Сегмент: Средний
- Стандарт: ЕвроГОСТ
- Количество циклов открывания/закрывания: 50 000
- Кол-во в упаковке: 10
- Вес упаковки: 12,348 кг
Указаны оптовые цены при покупке от 1 упаковки. Цвет изображения продукции может отличаться от цвета продукции в оригинале.
Источник
На функциональность предметов мебели в большей степени влияет установленная фурнитура. Чтобы повысить комфорт при использовании выдвижных конструкций (полок, ящиков и так далее), можно установить скрытые направляющие для ящиков. Что собой представляет данный вид фурнитуры? Каковы его преимущества и недостатки? Как самостоятельно выбрать и установить направляющие скрытого типа, читайте далее.
Выдвижной ящик на направляющих скрытого типа
Схема установки направляющих скрытого монтажа
Разметку на боковинах производим опираясь на высоту шефлотов. Линию крепления следует чертить минимум на 45 мм выше от дна тумбы или края нижнего шефлота. Не забывай, что ширина боковины должна быть на 10 мм больше длины направляющей.
В инструкции указано, что крепить направляшку надо в четвёртое отверстие на глубину 37 мм. Закрепив таким образом, шефлот не плотно прижимался к торцам боковины. Сместил на 39 мм и зазор исчез. Использовал Боярдовские направляющие скрытого монтажа.
Как быстро и ровно закрепить фасад на ящик с направляющими скрытого монтажа.
Для этого необходимо выполнить присадку под эксцентрик и на отверстие в торце наклеить небольшой кусок двустороннего скотча. Затем выставить фасад и приклеить его к ящику.
Резким движением отдёргиваем фасад от ящика. Скотч остаётся на фасаде, т.к. площадь соприкосновения с фасадом у скотча больше, чем с торцом ящика. След отверстия остаётся на скотче. Керним, убираем скотч и делаем присадку.
Теперь Вам известно то же, что знаю я. Вы способны установить направляющие скрытого монтажа без лишних движений. Система очень проста и не требует умственных усилий. Выполняйте инструкции и наслаждайтесь плавностью хода!
Если Вам понадобится деталировка корпусной или встроенной мебели , обращайтесь. Мы обязательно обсудим условия сотрудничества и придём к единому мнению. За умеренный процент за свой труд, я подготовлю для Вас подробный проект в назначенные сроки.
Что бы Вам хотелось добавить к этой статье?
Расскажите мне о своём опыте в комментариях.
Мне будет очень интересно послушать Ваши истории!
С хорошими мыслями о Вас, эксперт в мебельных вопросах
Ре́кун Дмитрий.
Не забудьте поделиться этой статьей в социальных сетях
Установка шкафа – дело непростое, особенно когда не знаешь, как и куда устанавливать некоторые комплектующие к данному предмету интерьера. Вспомогательными деталями могут быть, например, шариковые направляющие для выдвижных ящиков. Как установить их знает далеко не каждый, а тем временем без них не получится сделать полноценное место для хранения одежды и каких-либо иных принадлежностей. В этом материале подробно поговорим о том, из каких деталей состоит механизм шариковых направляющих, и как эти комплектующие установить на предназначенное для них место.
Шариковые направляющие для выдвижных ящиков: как установить
Коллекция Aero
Экономию и максимальный комфорт в создании быта можно достигнуть с применением трех разновидностей механизмов коллекции Aero:
- Aeroloft наиболее подходит для мебели с высоким фасадом и шкафов, расположенных в верхних ярусах, а также для шкафов в нишах;
- Aerosplit и Aeroflap применимы для небольших помещений с невысокими потолками.
Данные механизмы гарантируют защиту пальцев рук от защемления.
Коллекция Aero – это общая работа итальянской фирмы и российской компании Боярд. Разработанная продукция полностью ориентирована для российского потребителя.
Применение данной фурнитуры – гарантия комфортного обустройства кухонного и жилого пространства.
Конструкция шариковых направляющих: основные моменты
Итак, чтобы понять принцип работы устанавливаемых нами комплектующих, необходимо обратиться к наиболее упрощенному их варианту – двухсекционным неразборным направляющим. Эти детали состоят из двух рельс, которые:
- разнятся по величине;
- имеют форму буквы «П»;
- располагаются одна внутри другой.
Работа данного элемента системы, отвечающей за выдвижение ящиков, осуществляется ввиду взаимного перемещения относительно друг друга дорожек, выполненных из стали, которые, собственно, и составляют интересующую нас деталь. Их еще называют телескопическими за то, как они складываются.
Установка шариковых направляющих для ящиков не займет большого количества времени
Между данными дорожками, как правило, в верхней и нижней части, находятся шарики небольшого размера. Они похожи на такие же шарики, которые обычно размещаются в подшипнике.
Элементом, отвечающим за поддержание конструкции в качестве единого целого, является внешний сегмент рельсы. Он играет роль ограничителя, не давая устройству выдвинуть ящик дальше, и повредить вес предмет обстановки.
Качество продукции
Компания очень серьезно относится к качеству своей продукции. В компании организован отдел, который создал стандарты качества. За соблюдением этих стандартов ведется строгий контроль.
Существующие виды шариковых направляющих
Рассматриваемая нами сегодня система, идущая в качестве комплектующего к домашней мебели, может принимать различные формы. Так, будут они варьироваться ввиду изначального предназначения данной двигательной системы, и набора функций, которым она изначально была наделена. В нижеследующей таблице давайте изучим, какими могут быть шариковые направляющие и по каким критериям их различают.
Существует множество разновидностей шариковых направляющих
Таблица 1. Виды шариковых направляющих
| Критерий | Описание видов |
| Наличие возможности разукомплектовать устройство | По данному критерию можно выделить:
|
| Количество «ступеней» | По данному параметру можно поделить существующие разновидности направляющих интересующего нас типа на:
|
| Тип конструкции | Согласно искомому пункту, можно выделить шариковые направляющие:
|
| Способ установки устройства | Монтаж интересующих нас деталей может осуществляться двумя способами:
|
Ящик с такими направляющими движется почти бесшумно, и может выдержать немалый вес
Окончательная стоимость механизмов, которые не могут быть разобраны после установки, не утратив функциональности, будет намного меньшей, чем аналогичное значение для разборных механизмов. Дело в том, что последние производятся по усложненной технологии, и в конечном итоге оснащаются специально укрепленными шариками, которые и позволяют несколько раз разобрать и собрать устройство обратно без ущерба и страха потерять мелкие элементы конструкции.
Шарики внутри устройства выполняются из стали. Они перемещаются по внутреннему пространству металлического профиля, позволяя легко выдвигать из шкафа, комода, кровати и других предметов мебели ящики, выполненные из абсолютно любого материала и имеющие любую величину.
Такие направляющие подходят для установки к ящикам практически из любого материала
На окончательную стоимость данных двигательных систем будет оказывать влияние любой из перечисленных выше в таблице параметров, не только возможность разукомплектовки. Так, чем больше будет чисто ступеней и количество уровней, которыми искомая система оборудована, тем она станет дороже. Это обуславливается, разумеется, сложностями, через которые производителю пришлось пройти при создании интересующего нас приспособления.
Цены на модельный ряд направляющих роликовых
Роль шариковых направляющих в мебельном производстве
Невзирая на то, что принцип работы устройств телескопического типа используется для создания множества изделий в различных сферах научной и практической деятельности человека, наиболее часто их все же продолжают применять в области изготовления корпусной мебели различного типа.
Шариковые направляющие нужны, чтобы оснащать ими мебель, которая затем становится значительно более функциональной, а кроме того:
- позволяет ящикам выдвигаться бесшумно;
- увеличивает допустимую нагрузку, которая оказывает непосредственное воздействие на ящик, продлевая срок его службы.
Схема установки шариковых направляющих в ящик и короб из-под него
Так, в качестве примера можно привести шкафы-гардеробы, внутри которых устанавливаются множественные выдвижные ящики, экономящие свободное пространство и в целом повышающие удобство пользования данным предметом мебели. Обычно такие ящики забиваются одеждой и аксессуарами, как говорят, под завязку. И, тем не менее, благодаря шариковым направляющим они работают бесшумно и аккуратно.
Внешняя фурнитура
Компания не переставая занимается развитием своей коллекции. Предлагает современные дизайнерские решения лицевой фурнитуры.
- В состав самой востребованной мебельной фурнитуры входят ручки и крючки.
- Они имеют не только функциональное значение, но и эстетическое.
- Большой ассортимент изделий Боярд представлен в каталоге на официальном сайте компании.
- Можно с легкостью сделать выбор подходящего изделия, изучив характеристики и материал изготовления.
Фантастическая и запоминающаяся коллекция Dreams вышла в 2006 году. В серии Classic Techno представлено 80 фурнитурных новинок.
Шариковые направляющие для выдвижных ящиков: подбор деталей
Комплект интересующих нас комплектующих состоит из:
- левого телескопического полоза;
- правого телескопического полоза.
Каждый из упомянутых полозьев также делится на два составляющих сегмента.
Обратите внимание: не думайте, что шариковые направляющие можно установить только на мебель, произведенную промышленным путем. Нет, на самом деле их можно поставить и на мебель, созданную своими руками, только предварительно нужно будет выяснить ее параметры и согласно им уже закупить подходящие детали. Дело в том, что направляющие отличаются друг от друга множеством различных параметров, среди которых особенную важность имеет толщина.
Каждый параметр комплектующих должен подбираться при тщательном измерении собираемого предмета мебели
Глубина ящика, на который будет осуществляться монтаж, должна равняться длине выбираемой нами детали, при этом, правда, нужно принять во внимание, что между задней стенкой оснащаемого предмета мебели и задней стенкой ящика, на который ставятся направляющие, необходимо оставлять минимальный зазор, равный 1 сантиметру.
Также при подборе направляющих необходимо учитывать толщину:
- самого выдвижного механизма;
- внешних стенок нашего ящика.
Кроме того, не забывайте также и о добавлении технологического зазора, компенсирующего допущенные вами при измерении неточности. Использование данного зазора впоследствии обеспечит ящикам полностью свободное движение. Чаще всего величина данного технологического параметра составляет примерно миллиметр.
Регулировка ящиков при помощи данного типа направляющих осуществляется по двум плоскостям
Ширина ящика рассчитывается посредством вычитания следующих удвоенных величин:
- толщины внешней части стенок;
- толщины самого механизма;
- величины оставляемого зазора.
Такой же параметр, как длина ящика, будет ограничиваться свободным пространством, имеющимся в нашем распоряжении. Тем не менее, ее подсчитать намного проще, ведь для этого всего-то и нужно, что уменьшить свободное пространство на показатель величины очередного зазора.
Чтобы провести нужные нам измерения, предварительно придется установить ящик в коробе шкафа по всем правилам, и тогда получится его отрегулировать, правильно сделать разметку, и, впоследствии качественно навесить направляющие.
Телескопические направляющие для выдвижных ящиков – это современная фурнитура, позволяющая без усилий открывать даже массивные конструкции. Хотите подробно узнать о монтаже телескопических направляющих и правильном расчете для их установки? Читайте специальную статью.
Видео — Шариковые направляющие. Монтаж
Новые разработки
Сейчас производители мебельной оснастки ведут борьбу за новые технологии, оригинальность и функциональность фурнитуры для мебели, предназначенной для кухни. Боярд представила результат своих разработок.
На рынок вышла коллекция подъемных конструкций для навесной мебели: фурнитура с вертикальным механизмом AeroLoft, с откидным AeroFlap и со складным AeroSplit. Это результат совместной работы инженеров компании Боярд и лидирующей в Италии фабрики мебели и фурнитуры.
Коллекция механизмов Aero – наилучший выбор в достижении комфортной жизни.
При выборе подъемного механизма для кухни нужно придерживаться следующих факторов:
- габариты, масса и вид мебельного фасада;
- возможности конструкции;
- расположение потолка и наличие вмонтированных светильников;
- существование карниза;
- дизайн мебели;
- рост людей, которые данной мебелью будут пользоваться.
Как установить шариковые направляющие на выдвижные ящики своими руками
Итак, мы подошли к моменту, ради которого, собственно, вы и искали данную статью. Он подразумевает изучение способа самостоятельной установки шариковых направляющих на ящики для шкафа или иного предмета мебели. Итак, приступим.
Ящик на шариковых направляющих
Шаг № 1 – делаем разметку под фурнитуру
Итак, необходимо в первую очередь сделать разметку под устанавливаемую фурнитуру. Она производится с помощью карандаша и линейки, так как нам необходимо разметить ось, проходящую строго через центральную част ящика.
В первую очередь нам необходимо прорисовать ось под направляющую
После того, как этот этап будет выполнен, переходим к следующему.
Шаг № 2 – Закрепляем полоз комплектующих на размеченной стороне ящиков
Итак, мы нарисовали ось, по которой будет производить установку деталей. Теперь нужно наложить на нее полоз направляющих, таким образом, чтобы передний край данной детали находился на одном уровне с фасадом оснащаемого сегмента мебели. Однако, вам нужно внимательно следить, чтобы не наблюдалось выпирание детали вперед, так как в данной ситуации вполне возможно возникновение зазора, который нам совершенно не нужен.
Обратите внимание на полоз. Помочь нам правильно его разместить помогут регулирующие отверстия, вырезанные на нем самом. Они небольшие и продолговатые.
Искомые регулировочные отверстия нужны для того, чтобы правильно закрепить полоз относительно ящика
С помощью обнаруженных отверстий выравниваем наш полоз строго по расчерченной оси. Сделать это просто: просто совместите все отверстия с линией так, чтобы она четко пролегала через их центр.
Затем в отверстие, расположенное на нашей детали горизонтально, вводим саморез. Теперь мы можем двигать полоз назад и обратно, не меняя положения его сегмента.
Регулировочное отверстие, отвечающие за направление движения вверх и вниз с задней стороны ящика
Задний сегмент нашего полоза закрепляем через прореху, отвечающую за движение ящика по вертикальным осям. Это нужно будет для того, чтобы впоследствии получить возможность проводить регулировку высоты ящика, выполнив следующие простые несколько шагов.
- Демонтировав с помощью отвертки или шуруповерта саморез из фасадного отверстия, отвечающего за горизонтальное движение ящика.
- Этот же саморез повторно вкрутим, однако, уже в фасадное отверстие, отвечающее за хождение ящика по вертикальной оси.
Дублирующее регулировочное отверстие для направления «вверх и вниз», для фасадного сегмента оснащаемой детали шкафа
Тогда у нас получится, что деталь, впоследствии будет присоединена к ящику посредством двух регулирующих отверстий, расположенных как в фасадной, так и в задней части ящика, отвечающих за хождение его по оси «вверх-вниз».
Шаг № 3 – установка направляющей непосредственно к боковине короба
Теперь, чтобы наше устройство работало, а ящики выдвигались, необходимо присоединить вторую часть нашей направляющей системы к внутренней части короба шкафа, внутрь которого затем и устанавливается ящик.
Крепежное отверстие, внутрь которого размещается саморез, самого обычного вида, круглый
Цены на аккумуляторные отвертки
Только тут нужно учитывать один важный момент: в отличие от сегмента системы направляющих, присоединяющегося к боковине нашего выдвижного ящика, у той части, которая идет в короб, регулируемых отверстий куда больше. И помимо прорех, через которых система может двигаться по интересующим нас осям «вверх и вниз» и «вперед и назад», у них также имеются иные пазы горизонтального и вертикального типа, внутрь которых также требуется вкрутить саморезы.
Крепежное отверстие и регулировочные пазы, наличие которых нужно учитывать при установке данной детали направляющих
Присоедините направляющую, и отрегулируйте ее, таким образом, вставив саморезы по примеру предыдущего шага только в два отверстия, чтобы ящик вставал внутрь короба правильного. Как только вы убедитесь, что все установлено и отрегулировано согласно задумку, вытащите ящики вновь и вкрутите саморезы во все отверстия деталей короба.
Основание компании
В 2003 году фирма Боярд официально получила статус торговой марки в России и продолжила дальнейшее развитие бренда. С ключевым направлением предлагаемой продукции компания определилась после сбора информации от многих мебельных фирм России.
Учитывая тенденции изготовления того времени, компания приняла решение заменить пластик на металл. В результате этого в продажу поступили металлические ручки для дверей производства Боярд по цене пластиковых изделий. Это решение положительно сказалось для компании и обеспечило ей высокий рейтинг среди потребителей.
Привет, уважаемый читатель! Всё чаще клиенты заказывают направляющие скрытого монтажа. И я прекрасно их понимаю, потому-что они превосходят по качеству шариковые. К тому же внутреннее пространство тумбы используется максимально.
Ящик выглядит красиво на скрытых направляющих. Плавность хода сравнима с дорогими брендами. Отлично работающий доводчик, позволяет наслаждаться тишиной. Вы будете рады узнать, что монтаж и демонтаж освоит даже хозяйка.
Направляющие скрытого монтажа расчёт ширины
Для расчёта ширины лобовой и задней планки ящика, отнимаем от внутренней ширины тумбы 42 мм. Где 32 мм это боковины ящика и 10 мм это зазоры по 5мм между боковинами и ящиком. Длина ящика всегда на 10 мм меньше направляющей. Например если направляющая на 500, то ящик будет 490 мм.
Направляющие скрытого монтажа расчёт высоты ящика
Боковые по высоте рассчитываются на 11 мм больше внутренней высоты ящика.Чтобы скрыть направляющие скрытого монтажа. Т.е. если внутренняя высота ящика 100 мм, то высота боковой планки = 100 мм (лобовая или задняя планка) + 16 мм (дно) +11 мм (нижний зазор) = 127 мм высота боковых планок.
Помни, что ширина боковины тумбы всегда больше на 10 чем длина направляющей. Т.е. если направляющие на 500 мм, то боковины тумбы 510 мм. Иначе ящик будет упираться в заднюю стенку. Как показала практика, заявляных в инструкции 5 мм мало.
В шаговой доступности от Вас, размещена услуга по расчёту корпусной мебели.
Установка направляющих скрытого монтажа
Если Вы возьмёте в руки направляющую, то увидите на заднем конце крючок. Он предназначен для фиксации ящика по заду. Чтобы разметить отверстия для крючков, необходимо поставить ящик на направляшки и надавить ящиком на крючки — они отпечатаются.
А теперь посмотрите на фиксаторы. Они держат ящик с лицевой стороны.Прикручиваем их ко дну ящика, заподлицо с краем, 16 ми саморезами (идут в комплекте). С их помощью появляется регулировка ящика по высоте. Чтобы снять ящик, достаточно отжать синие флажки и поднять короб вверх.
Направляющие скрытого монтажа схема установки
Разметку по высоте, производим опираясь на высоту шефлотов. Раскладываем рядом с боковиной фасады на родную высоту. На боковину — направляющие, не ниже нижней точки фасада.Фиксируем высоту рулеткой, проводим горизонтальную линию и переносим такой же размер на соседнюю боковину.
В инструкции указано, что крепить направляшку надо в четвёртое отверстие на глубину 37 мм. Закрепив таким образом — фасад ящика не плотно прижимался к торцам боковины. Сместил на 39 мм и зазор исчез. Использовал Боярдовские направляющие скрытого монтажа.
Как быстро и ровно закрепить фасад на ящик с направляющими скрытого монтажа.
Обратите внимание на мой метод точного крепления фасада к ящику без рулетки. Для этого необходимо засверлить боковину ящика под шток эксцентрика и на отверстие наклеить небольшой кусок двустороннего скотча. Продавить его пальцем, затем выставить фасад на родную высоту и приклеить его к ящику.
Теперь резким движением отдёргиваем фасад от ящика. Скотч остаётся на фасаде, т.к. площадь соприкосновения с фасадом у скотча больше, чем с торцом ящика. След отверстия остаётся на скотче. Керним, убираем скотч и делаем присадку. Лучше использовать синий двусторонний скотч.
Итог
Теперь Вам известно то же, что знаю я. Вы способны установить направляющие скрытого монтажа без лишних движений. Система очень проста и не требует умственных усилий. Выполняйте инструкции и наслаждайтесь плавностью хода!
Если Вам понадобится деталировка корпусной или встроенной мебели , обращайтесь. Мы обязательно обсудим условия сотрудничества и придём к единому мнению. За умеренный процент за свой труд, я подготовлю для Вас подробный проект в назначенные сроки.
Что бы Вам хотелось добавить к этой статье?
Расскажите мне о своём опыте в комментариях.
Мне будет очень интересно послушать Ваши истории!
С хорошими мыслями о Вас, эксперт в мебельных вопросах
Ре́кун Дмитрий.
Не забудьте поделиться этой статьей в социальных сетях
На функциональность предметов мебели в большей степени влияет установленная фурнитура. Чтобы повысить комфорт при использовании выдвижных конструкций (полок, ящиков и так далее), можно установить скрытые направляющие для ящиков. Что собой представляет данный вид фурнитуры? Каковы его преимущества и недостатки? Как самостоятельно выбрать и установить направляющие скрытого типа, читайте далее.
Выдвижной ящик на направляющих скрытого типа
Устройство и принцип работы скрытых направляющих
В комплект направляющих скрытого монтажа входят:
- металлические планки;
- металлические основания, по которым происходит движение планок;
- роликовые или шариковые механизмы, облегчающие процесс движения планок;
- цапфы для фиксации фурнитуры к ящику;
- крепежные элементы.
Комплектация направляющих скрытого монтажа
Стандартные комплекты могут быть дополнены:
- устройствами плавного закрытия. Фурнитура с доводчиком позволяет продлить срок службы мебели, так как отсутствие хлопка при закрывании исключает возможность повреждения материала;
- возвратными пружинами, позволяющими плавно и в короткие сроки закрыть выдвинутый ящик;
- замками-фиксаторами, облегчающими процесс использования и демонтажа конструкции;
- системами открывания нажатием на фасад ящика (Push-to-open).
Все направляющие скрытой установки изготавливаются из качественных материалов и отличаются:
- доступностью. Стоимость фурнитуры значительно ниже популярных в настоящее время метабоксов и тандембоксов, а функциональность значительно приближается к указанным комплектам;
- бесшумностью при работе;
- возможность полного выдвижения ящика;
- компактностью и возможность использования максимального количества пространства предмета мебели;
- долговечностью.
К недостаткам можно отнести сложность установки, но подробная инструкция, прилагаемая к комплекту фурнитуры, и наличие начальных навыков работы с простейшим набором инструментов существенно облегчат процесс.
Лучшее решение для мебели – Quadro
Направляющие Quadro гарантируют безупречную работу ящиков на долгие годы. Для дизайнерской мебели, где важно спрятать технику от глаз, особенно подойдет скрытая направляющая, в которой все функциональные элементы спрятаны за фасадами и боковинами ящика. Там, где нужно максимальное качество и стабильность работы, Quadro – лучшее решение.
Направляющая Quadro создана для высокоточного и плавного хода выдвижного ящика. До 180 стальных шариков перемещаются по стальным направляющим каналам, день за днем обеспечивая прецизионную работу. Такая исключительная особенность, как продолжительная безупречная функциональность, стала возможной благодаря идеально отработанной технике Quadro. Давление и нагрузки на ящик с любой стороны поглощаются опять же благодаря направляющим Quadro, которые отвечают за стабильность по вертикали и горизонтали. Направляющие Quadro отличаются плавным и послушным ходом даже при полной загрузке ящика – принцип шарикоподшипника работает долгие годы.
Silent System – звук тишины.
Ящики, закрывающиеся плавно и бесшумно, привносят нотку эксклюзивности и позитивно влияют на настроение домочадцев. Никакие шумы и хлопки при закрывании ящика больше не нарушат уютную атмосферу дома. Silent System — это и есть бесшумное закрывание. Маленькие или большие, слабо или сильно загруженные ящики всегда закрываются одинаково мягко с направляющими Quadro и интегрированным в них демпфером Silent System. Демпфер Silent System установлен в направляющую Quadro еще при производстве, а это значит, что монтаж остается прежним, а в работе направляющих появляются новые эксклюзивные характеристики и особое удобство для пользователя. Порадуйте вашего покупателя уникальным сочетанием долговечной функциональности и роскоши бесшумного закрывания.
Гладкие поверхности без ручек – Quadro с механизмом Push to open.
Минимализм в дизайне мебели сейчас на пике моды. И механизм Push to open для Quadro делает возможным использование гладких фасадов без ручек. С этим инновационным решением от Хеттих проектирование и производство фасадов без ручек становится простым и естественным. Механизм Push to open обеспечивает удобное открывание любых ящиков и выдвижных элементов легким нажатием на фасад. Легкое нажатие активизирует функцию автоматического открывания ящика. Даже если выдвигать ящик привычным образом, это не повредит надежным функциям Push to open. Push to open идеален для ящиков шириной до 900 мм.
Дополнительно о механизме Push to open можно прочесть в статье: Системы открытия от нажатия Push To Open и TIP-ON — обзор.
Скачать инструкцию: Направляющие для ящиков Quadro в формате .PDF
Перечень основных преимуществ направляющих скрытого монтажа Quadro:
• Плавное скольжение направляющих благодаря технологии Quadro • Мягкое и бесшумное закрывание благодаря Silent System • Полное выдвижение – чтобы видеть и удобно доставать все содержимое ящика • Можно комбинировать с PUSH to OPEN, механической системой открывания • Долгий срок службы • Удобная регулировка
Способы монтажа:
Насадной монтаж • Quadro следующее закрыть
• Насадной монтаж. Выдвижной ящик под наклоном насаживается сверху на выдвинутые направляющие. В два отверстия на задней стенке выдвижного ящика вставляются задние крюки направляющей. Надавив на выдвижной ящик, его соединяют с цапфами. Сужающиеся кверху цапфы обеспечивают точность и плотность посадки. Для демонтажа выдвижной ящик выдвинуть до упора, слегка приподнять и снять. Выдвижной ящик фиксируется благодаря установочным цапфам, а точная высота настраивается с помощью регулировочного колесика.
Надвижной монтаж • Quadro следующее закрыть
• Надвижной монтаж Держа ящик горизонтально, просто поместите его на направляющие и задвиньте внутрь. Фиксатор автоматически надежно зафиксирует ящик на направляющих. Снять ящик с направляющих так же просто. Установленная высота фасада сохраняется при демонтаже ящика. Синее регулировочное колесико, встроенное в фиксатор, меняет положение клина между днищем ящика и направляющей, что обеспечивает идеальную регулировку фасада ящика по высоте без использования инструмента. Что нужно знать о системе направляющих QUADRO: • Silent System – демпфер, интегрированный в направляющую Quadro V6, закрывает ящики плавно и бесшумно. • Идеальная стабильность в вертикальном и горизонтальном направлениях. Износостойкие направляющие каналы обеспечивают идеальное перемеще- ние стальных шариков внутри направляющей – для точной и контролируе- мой работы. • Направляющие каналы не нуждаются в обслуживании благодаря функции самоочистки. • Надвижной монтаж – просто поместить ящик на направляющие и задвинуть внутрь. Готово! • Прочный фиксатор со встроенным регулировочным колесиком для настрой- ки высоты без инструмента. • Взаимозаменяемость компонентов системы – замена Quadro частичного выдвижения на Quadro полного выдвижения без изменений размеров кор- пуса, ящика и передней панели.
Системы направляющих по типу выдвижения: полного и частичного выдвижения.
• полного выдвижения — система позволяющяя выдвигать ящик целиком из корпуса модуля. • частичного выдвижения — система оставляет тыльную часть ящика в модуле корпуса примерно на 100мм. Частичного выдвижения — это система эконом-вариант.
Схемы устройства и монтажа систем направляющих Quadro
• Направляющие полного выдвижения для деревянных ящиков Quadro V6 Silent System — Нагрузочная способность 30 кг. • Направляющие частичного выдвижения для деревянных ящиков Quadro 30 Silent System Нагрузочная способность 30 кг. • Направляющие полного выдвижения для деревянных ящиков Quadro V6 Stop Control Нагрузочная способность 30 кг • Направляющие частичного выдвижения для деревянных ящиков Quadro 30 Stop Control Нагрузочная способность 30 кг
Расчет деревянного ящика — система QUADRO:
— Длина ящика: Номинальная длина ящика = длине направляющей — 250; 300; 350; 400; 450; 500мм.
— Ширина ящика равна: Внутренняя ширина корпуса модуля для встраивания ящика минус 8 мм. Соответственно если ширина корпуса модуля для встраивания ящика 500мм., то ширина ящика = 492мм. Длина передней и задней стенки ящика = ширина корпуса модуля минус 40 мм. Соответственно если ширина корпуса модуля 500мм., то длина передней и задней стенки ящика = 460мм.
— Высота ящика: Необходимое пространство в корпусе определяется самостоятельно, но рекомендуется отступить от верхней кромки декоративного фасада ящика 10-20 мм.
Выбор фурнитуры
Залогом длительного использования скрытых направляющих в первую очередь играет правильный выбор фурнитуры. Чтобы корректно подобрать механизм для выдвижного ящика, необходимо учитывать:
- габаритные размеры фурнитуры;
- максимальную нагрузку;
- разновидность;
- фирму-производителя.
Виды направляющих
Направляющие скрытого монтажа могут быть:
Шариковые направляющие изготавливаются из двух и более металлических профилей, соединенных между собой с использованием шариков качения (сепаратор).
Устройство скрытой направляющей шарикового типа
Преимуществами данного механизма являются полное отсутствие шума при работе, возможность регулирования и возможность использования при нагрузках до 60 кг – 65 кг. Существенным недостатком является высокая стоимость фурнитуры.
Роликовый механизм является более простой и более дешевой конструкцией. Направляющие состоят из двух металлических планок, на концах которых установлены ролики, облегчающие процесс движения.
Монтажа направляющих скрытого типа
Итак, к каждому комплекту направляющих, изготовленными фирмами Блюм, Хеттих и так далее, прилагается схема установки фурнитуры, в соответствии с которой и рекомендуется производить монтаж.
Схематическое изображение процесса установки
В общем случае монтаж фурнитуры Боярд, Блюм и так далее, производится так:
- на дне ящика производится разметка мест крепления фиксатором направляющих в соответствии с рекомендациями специалистов, указанные в инструкции;
- фиксаторы закрепляются саморезами (прилагаются к комплекту фурнитуры);
Размещение и крепление фиксатора для направляющей планки
- напротив фиксаторов просверливаются отверстия для крючка-защелки, по размеру полностью соответствующему данному элементу выдвижной системы;
- устанавливаются планки направляющих;
Расчет ящиков под направляющие blum
Здравствуйте дорогие друзья.
Мы с вами уже говорили о тандемах Blum.
В этой статье предлагаю рассмотреть расчет выдвижных ящиков под них.
Если вы читали статью об этой выдвижной системе, то, наверное, уже знаете, что ящики для нее проектируются и собираются совсем не так, как для других направляющих (тех же «телескопов»).
Высота их боковых (дя2) и фронтальных (дя1) деталей – разная, и дно, которое немного смещено относительно низа – из ДСП.
Размер такого выступа должен быть в пределах 13-ти миллиметров.
Итак, давайте рассмотрим расчет на конкретном примере (так будет более понятно).
Все величины, предложенные в дальнейшем, будут измеряться в миллиметрах.
Например, нам нужно рассчитать выдвижной ящик на короб, шириной 550, глубиной 460, под верхний фасад, высота которого равна 150.
Сначала рассчитаем размеры деталей по ширине (глубине).
Для того, чтобы узнать ширину фронтальных деталей (дя1), нужно от размера корпусной планки короба отнять 42.
В данном случае, ширина корпусной планки короба (шириной 550) будет равна:
550-32=518
Теперь, отнимаем от этой величины 42, и получим ширину (дя1):
518-42=476
Дальше, глубина детали (дя2) зависит от размера направляющей.
Так как глубина короба, в который мы проектируем ящик, равна 460, то направляющая для него подойдет на 450.
Чтобы узнать размер (дя2), нужно от размера направляющей (450) отнять 10:
450-10=440
Теперь нужно определиться с размерами деталей ящика по высоте.
В собранном состоянии, направляющие тандемов выступают вниз на 15 под ящиком (смотрите рисунок ниже).
Итак, если мы возьмем высоту ящика (а, если быть точнее – то это будет высота деталей (дя2)) равную 100, и предположим, что снизу направляющих еще должен быть зазор, равный 10, то, прикинем, сколько свободного пространства останется на перекрытие корпусных планок сверху:
150-100-15-10=25, где 150 – высота фасада, 100 – высота ящика, 15 – выступ системы снизу, 10 – свободный зазор.
Перекрываются корпусные планки и еще остается нормальный зазор.
Ну а высота (дя1) определяется с учетом того, что дно ящика сделано из ДСП, и оно должно быть смещено относительно деталей (дя2) на 13:
100-13-16=71
Ну, и наконец, высчитаем размеры самого дна.
Ширина дна будет равна ширине детали (дя1), то есть 476
Глубина будет равна размеру детали (дя2), то есть 440.
Итак, теперь можно записать деталировку:
- дя1 – 71х476 (2шт)
- дя2 – 100х440 (2шт)
- дно – 440х476
Но это еще не все.
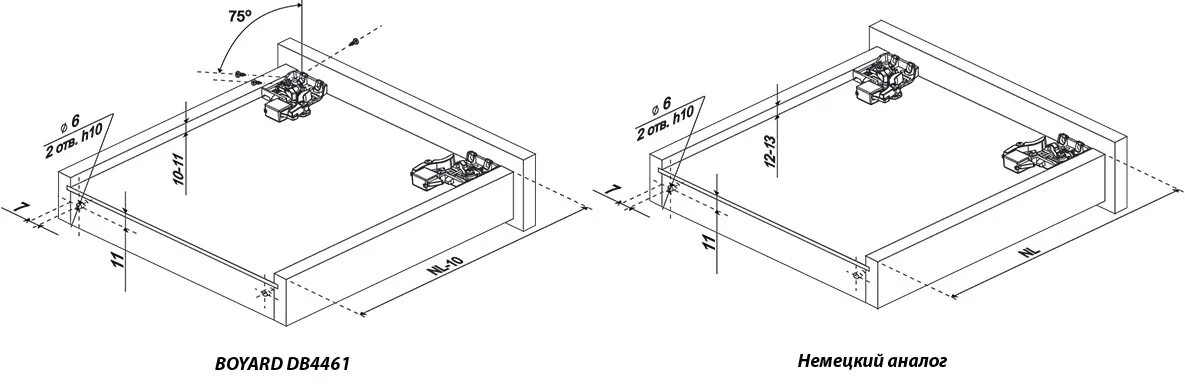
С заднего края этого ящика нужно сделать два отверстия диаметром 6мм, по размерам, указанным на рисунки ниже.
О том, как сделать разметку короба под установку тандемов, мы поговорим в отдельной статье.
А на этом, наверное все, до новых встреч!
На чтение7 мин
Опубликовано
Обновлено
Установка направляющих для ящиков является важным этапом при сборке мебели. От правильной установки направляющих зависит плавность и легкость выдвижения ящиков. В данной статье мы расскажем вам о том, как правильно установить направляющие для ящиков Boyard и поделимся полезными советами и шагами для достижения идеального результата.
Прежде всего, необходимо учитывать тип и размер ящика изделия Boyard. В зависимости от этих параметров выбираются соответствующие направляющие. Есть три основных типа направляющих: шариковые, роликовые и телескопические. Каждый из них имеет свои особенности и предназначен для определенного вида ящиков.
Для начала, соберите основу ящика Boyard в соответствии с инструкцией производителя. Помните, что качественная и прочная основа является основой качественного установленного ящика. После сборки основы ящика, приступайте к установке направляющих.
Подготовка и инструменты
Перед тем как приступить к установке направляющих для ящиков Boyard, необходимо подготовиться и иметь под рукой несколько инструментов.
Вот список инструментов, которые понадобятся вам для проведения работы:
- Отвертка — для закручивания и откручивания крепежных элементов.
- Дрель — с помощью нее вы сможете предварительно отметить и сделать отверстия под крепежные элементы.
- Трещотка — пригодится для закручивания и откручивания винтов.
- Линейка или измерительная лента — чтобы точно отмерить необходимые размеры для установки направляющих.
- Клещи или пассатижи — для снятия и установки направляющих.
- Полотно пилы — может потребоваться для обрезки или подгонки направляющих по размеру.
- Карандаш — для отметок и маркировки мест установки.
Не забудьте подготовить рабочую поверхность и обеспечить удобный доступ к ящику, который вы планируете оснастить направляющими Boyard.
Выбор необходимых инструментов для работы
Для установки направляющих для ящиков Boyard вам понадобятся следующие инструменты:
- Отвёртка или электрический дрель с насадкой для отвертки. Это позволит вам закрепить направляющие на корпусе ящика.
- Измерительный инструмент, например, линейка или метр. С его помощью вы сможете точно определить, где нужно разместить направляющие.
- Ручная пила или электрическая циркулярная пила. С помощью пилы вы сможете обрезать направляющие до нужной длины.
- Набор отверток. Возможно, вам понадобится регулировать положение направляющих, и для этого потребуются отвертки разных размеров.
- Молоток или резиновый молоток. Они помогут вам аккуратно вставить направляющие в нужное положение.
- Клещи или плоскогубцы. При установке направляющих может возникнуть необходимость поправить их положение или закрепить их дополнительно. В таком случае незаменимыми помощниками окажутся клещи или плоскогубцы.
- Отбойный молоток и деревянные клинья. Если направляющие установлены неправильно или сидят слишком плотно, вам могут понадобиться отбойный молоток и деревянные клинья для их удаления или коррекции.
- Точилка или наждачная бумага. Если направляющие имеют острые края или неровности, необходимо будет их отшлифовать, чтобы избежать травм.
Комплектация инструментами и их состояние – важные факторы, которые могут повлиять на точность и качество установки направляющих для ящиков Boyard. Проверьте наличие всех необходимых инструментов перед началом работы и убедитесь, что они находятся в исправном состоянии.
Ознакомление с инструкцией
Перед тем, как приступить к установке направляющих для ящиков Boyard, важно ознакомиться с инструкцией производителя. Это поможет избежать ошибок и упростить процесс монтажа.
Инструкция по установке направляющих для ящиков Boyard должна содержать подробные и пошаговые рекомендации. В ней обычно указываются необходимые инструменты, материалы и шаги установки.
Прежде всего, следует проверить наличие всех компонентов и аксессуаров в комплекте. Обычно к ящикам Boyard прилагаются крепежные элементы, пластиковые заглушки и специальные роликовые направляющие.
Перед установкой направляющих необходимо выполнить подготовительные работы. Важно измерить размеры ящиков и отметить требуемые точки крепления направляющих на боковых стенках мебельного изделия.
Далее следует прикрепить роликовые направляющие к боковым стенкам ящиков в соответствии с инструкцией. Обычно это делается с помощью крепежных элементов, которые включены в комплект поставки.
После установки направляющих следует проверить их работу. Ящики должны легко выдвигаться и запираться. Если есть необходимость, можно отрегулировать направляющие для достижения оптимальной работы механизма.
Важно прочитать все разделы инструкции и следовать указанным рекомендациям. Если возникают трудности или вопросы, рекомендуется обратиться к специалисту или посетить официальный сайт производителя для получения дополнительной информации.
| Полезные советы | Шаги по установке |
|---|---|
| Проверьте наличие всех компонентов в комплекте | Измерите размеры ящиков и отметьте точки крепления |
| Ознакомьтесь с рекомендациями производителя | Прикрепите роликовые направляющие к ящикам |
| Проверьте работу направляющих | Регулируйте направляющие при необходимости |
| Обратитесь за помощью, если возникнут трудности | Следуйте инструкции шаг за шагом |
Установка направляющих для ящиков Boyard
Ящики Boyard известны своей надежностью и долговечностью. Они могут использоваться в различных мебельных конструкциях, но для достижения наилучшего результата важно правильно установить направляющие для ящиков. В этом разделе мы расскажем о шагах, которые необходимо выполнить для установки направляющих.
1. Подготовьте ящик Boyard для установки направляющих. Убедитесь, что ящик правильно собран и имеет все необходимые отверстия для крепления направляющих.
2. Разметьте место установки направляющих на корпусе шкафа или другой мебельной конструкции. Обратите внимание на рекомендации производителя относительно расстояния между направляющими.
3. Установите одну из направляющих на место и закрепите ее при помощи крепежных элементов, предоставляемых в комплекте. Убедитесь, что направляющая расположена ровно и прочно закреплена.
4. Повторите процесс для второй направляющей, не забывая следовать указаниям по расположению и креплению.
5. Проверьте работу направляющих, скользя ящиком по ним вверх и вниз. Убедитесь, что ящик движется плавно и без заеданий. Если обнаружатся проблемы, проверьте установку направляющих и внесите необходимые корректировки.
6. После установки направляющих убедитесь, что ящик установлен ровно и не отходит от направляющих во время движения. При необходимости отрегулируйте положение ящика.
Следуя этим шагам, вы сможете правильно установить направляющие для ящиков Boyard и наслаждаться безупречной работой вашей мебели.
Подготовка поверхности к установке
Для правильной установки направляющих для ящиков Boyard необходимо провести предварительную подготовку поверхности. Ниже приведены основные шаги, которые нужно выполнить:
- Очистите поверхность от грязи, пыли и других загрязнений. Используйте мягкую тряпку или специальные средства для очистки, чтобы не повредить поверхность.
- Проверьте, что поверхность ровная и гладка. При необходимости, выровняйте ее с помощью шпателя или шлифовальной машины.
- Обозначьте места установки направляющих на поверхности. Используйте отвес или уровень, чтобы получить прямые и ровные линии.
- При необходимости, сделайте отверстия для крепежных элементов. Используйте сверло подходящего диаметра и глубины.
- Проверьте, что все отверстия совпадают с местами установки направляющих. В случае несовпадения, внесите коррективы в расположение отверстий.
После выполнения этих шагов, поверхность будет готова к установке направляющих для ящиков Boyard. Приступайте к следующему этапу установки, следуя инструкциям производителя и используя необходимые инструменты.
Правильное расположение направляющих
Правильное установление направляющих для ящиков Boyard играет важную роль в функциональности и долговечности вашей мебели. Направляющие должны быть расположены симметрично и параллельно друг другу, чтобы ящик легко открывался и закрывался. Вот несколько полезных советов, которые помогут вам установить направляющие правильно.
- Первым шагом является измерение и отметка места, где будут располагаться направляющие. Убедитесь, что вы установите их на одинаковом расстоянии от краев ящика и симметрично по отношению к его ширине.
- Следующим шагом является установка нижней направляющей. Она должна быть установлена параллельно днищу ящика на равном расстоянии от его передней и задней стенок. Используйте шурупы или дюбели для закрепления направляющей на месте.
- После установки нижней направляющей, установите верхнюю направляющую. Она должна быть параллельна нижней направляющей и расположена на равном расстоянии от верхней части ящика. Используйте шурупы или дюбели для ее закрепления.
- После установки верхней направляющей, установите боковые направляющие. Они должны быть перпендикулярны к нижней направляющей и расположены на равном расстоянии от боковых стенок ящика. Опять же, используйте шурупы или дюбели для закрепления.
- Для лучшей функциональности и стабильности, убедитесь, что направляющие четко фиксируются на своих местах и не перемещаются. Проверьте, закрывается ли ящик мягко и плавно, без каких-либо трудностей или заеданий.
Следуя этим простым шагам и рекомендациям, вы сможете правильно установить направляющие для ящиков Boyard и наслаждаться комфортной и надежной мебелью на долгие годы.
Фиксация направляющих на ящике и каркасе
Для правильной установки направляющих на ящике и каркасе при сборке мебели Boyard рекомендуется следовать следующим шагам:
1. Подготовьте ящик и каркас, убедившись, что они имеют необходимые отверстия для установки направляющих.
2. Положите одну из направляющих на каркас и выровняйте ее. Убедитесь, что она находится на нужном уровне и правильно ориентирована.
3. С помощью отвертки или другого инструмента закрепите направляющую на каркасе. Удостоверьтесь, что она надежно закреплена, чтобы избежать люфта при использовании ящика.
4. Повторите те же действия для установки второй направляющей на другой стороне каркаса.
5. Проверьте, что ящик свободно скользит по направляющим без заеданий или скольжения. При необходимости отрегулируйте положение направляющих.
6. После завершения установки направляющих на ящике и каркасе, проверьте их работу несколько раз, чтобы убедиться в бесперебойной функциональности.
| Преимущества установки направляющих для ящиков Boyard |
|---|
| — Обеспечивает плавное и легкое открывание/закрывание ящиков. |
| — Предотвращает скользящее движение ящиков во время использования. |
| — Увеличивает надежность и долговечность мебели Boyard. |
Следуя этим полезным советам, вы сможете правильно установить направляющие для ящиков Boyard и наслаждаться комфортом использования мебели.
